.jpg)
Following notices of objection from BWXT Nuclear Energy and GE Vernova, the City of Peterborough will not pursue heritage designations for four buildings currently host to BWXT’s nuclear equipment plant on the site of the former General Electrics (now GE Vernova) factory at 107 Park Street North. This was decided by a council vote at a February 17th general committee meeting.
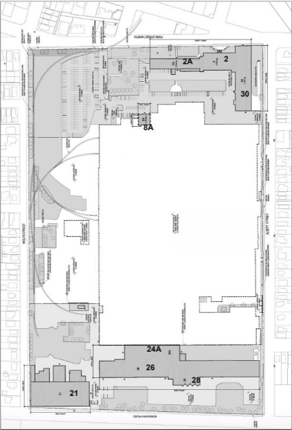
The buildings of note—labelled 21, 24A, 26, and 28 on the GE site map—were already recommended for a heritage designation last year following a letter by the Peterborough Architectural Conservation Advisory Committee (PACAC). Some (buildings 24A and 28) were not, however, recommended for a heritage designation by ERA Architects in their Heritage Impact Report last year.

Nuclear equipment manufacturer BWXT also leases these buildings. Both the manufacturer and GE Vernova cited interruptions in the commercial use of these buildings as reasons for their notice of objection sent to council last year.
That aforementioned staff report recommends following through with designating buildings 21 and 26, recommended for designation in the Heritage Impact Report, but not 24A and 28, which ERA Architects did not find particular heritage value in.
In recognition “that Council must balance the City’s interest in heritage preservation with other interests including the community’s long-term economic sustainability,” however, the staff report suggests a possible amendment to exclude all the cited buildings from a future designation.
Mayor Jeff Leal was keen on granting BWXT and GE Vernova their wish, moving to accept the report with staff’s amendment as soon as discussions opened.
“I have been in conversations with Mr. [Bill] Walker [...] the Vice President for Government Relations for BWXT,” Leal explained. “He certainly wanted to make sure that the four buildings that they currently lease for their production facilities here in Peterborough be excluded from that list.”
“I [...] had conversations with our MPP Mr. [Dave] Smith on this particular matter,” Leal added. “The Government of Ontario is going to be expanding opportunities for the production of nuclear energy in Ontario. In fact, Minister Lecce just announced last week that Wesleyville [in Port Hope] will be the site of a new [...] development [...] we want to make sure that our highly skilled, highly paid jobs remain right here in Peterborough.”
Town Ward Councillor Alex Bierk was confused about the report, which he felt contradicted the recommendations made by ERA Architects in 2025.
“I'm just wondering why this is coming to us like the way it is,” he asked of City staff.
“They're taking into consideration work that they may need to do to expand the BWXT site and they don't want that to be interfered with by a heritage designation [...] I'm wondering [...] why that wasn't part of our initial report,” Bierk continued. “What changed?”
Responding to Bierk, Infrastructure, Planning and Growth Management Commissioner Blair Nelson restated the information provided in the staff report.
“The initial report indicated that the couple of annexes which were attached to building 26—which was 24A and 28 [...] had limited heritage value, if any, and city staff agreed with that. So that's why the initial recommendation [was] that those buildings, those annexes to the building 26 be removed,” he told Bierk.
Bierk reiterated his stance on the topic, seen in debates around the partial demolition of the GE Vernova plant in the fall of 2025.
“As a city and as a council, we continue to be led down the path by a company that has, in large, abandoned that site and will continue to do so,” he told the horseshoe. “Anytime we look at this, to me, it presents an opportunity for us as a city to take a proactive stance on that site and to do something in a way that will revitalize it.”
Otonabee Ward Councillor Kevin Duguay came out in favour of the motion, calling BWXT and GE Vernova’s requests “reasonable.”
Attending the meeting remotely, Town Ward Councillor Joy Lachica inquired with Leal about his comments on potential expansions of BWXT’s activities in Peterborough, given the likely demolition of parts of the site out of which they currently operate.
“Is there any discussion that you could speak of with regard to GE perhaps extending the scope of the lease because of their intentions to expand?” She asked Leal. “You've spoken about growth, but their intentions [would be] to expand nuclear operations [on a] site for which a demolition application is being made. Is there any connection there?”
“Not at all at this time,” he answered. “They're looking at opportunities within those four buildings. One of the more interesting proposals, of course, is the additional production of nuclear isotopes for medicine throughout the world. And of course, we all welcome that. But currently, the current footprint that they have with the four buildings meets their needs.”
This concluded discussions on the topic, with council moving to a vote on the motion. Seeing as a version of the motion which would remove buildings 21 and 26 from a prospective heritage designation was already included in the stafff report, Leal’s request to adopt that version of the report was not technically considered an amendment, and thus not subject to a vote on its inclusion in the main motion.
The single vote on the motion carried—it now awaits ratification at next week’s regular city council meeting.
.png)
The rich text element allows you to create and format headings, paragraphs, blockquotes, images, and video all in one place instead of having to add and format them individually. Just double-click and easily create content.
A rich text element can be used with static or dynamic content. For static content, just drop it into any page and begin editing. For dynamic content, add a rich text field to any collection and then connect a rich text element to that field in the settings panel. Voila!
"Headings, paragraphs, blockquotes, figures, images, and figure captions can all be styled after a class is added to the rich text element using the "When inside of" nested selector system."
.png)
The rich text element allows you to create and format headings, paragraphs, blockquotes, images, and video all in one place instead of having to add and format them individually. Just double-click and easily create content.
A rich text element can be used with static or dynamic content. For static content, just drop it into any page and begin editing. For dynamic content, add a rich text field to any collection and then connect a rich text element to that field in the settings panel. Voila!
"Headings, paragraphs, blockquotes, figures, images, and figure captions can all be styled after a class is added to the rich text element using the "When inside of" nested selector system."